
No. 41 Apartment
- Architecture Firm:DO/ON Studio
- Lead Architects:Leila Jamshidnejad-Ali Mohagheghzadeh
- Location:Bushehr,Iran
- Type:Residential
- Year:2021
- Construction:Amer Ghayyem
- Construction Supervision:DO/ON Studio
- Site Area:238 m²
- Built Area:915 m²
- Status:Built
- Materials in use:Stone
- Photo:Arash Akhtaran-Ali Jahanara
- Render:Ehsan Danandeh
- Diagram:Ehsan Danandeh-Nikan Hajari
- Client:Yaser Ghayyem
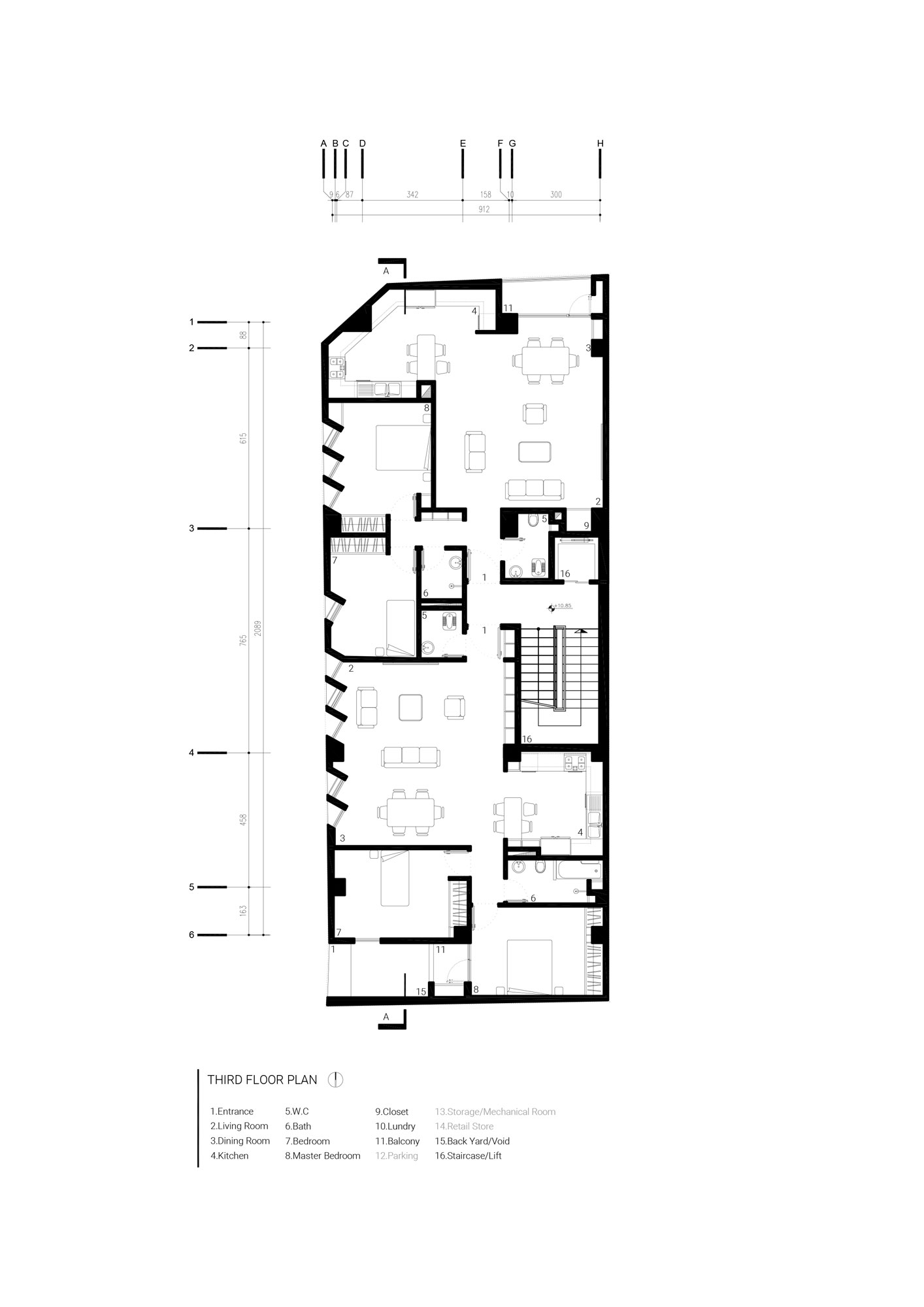
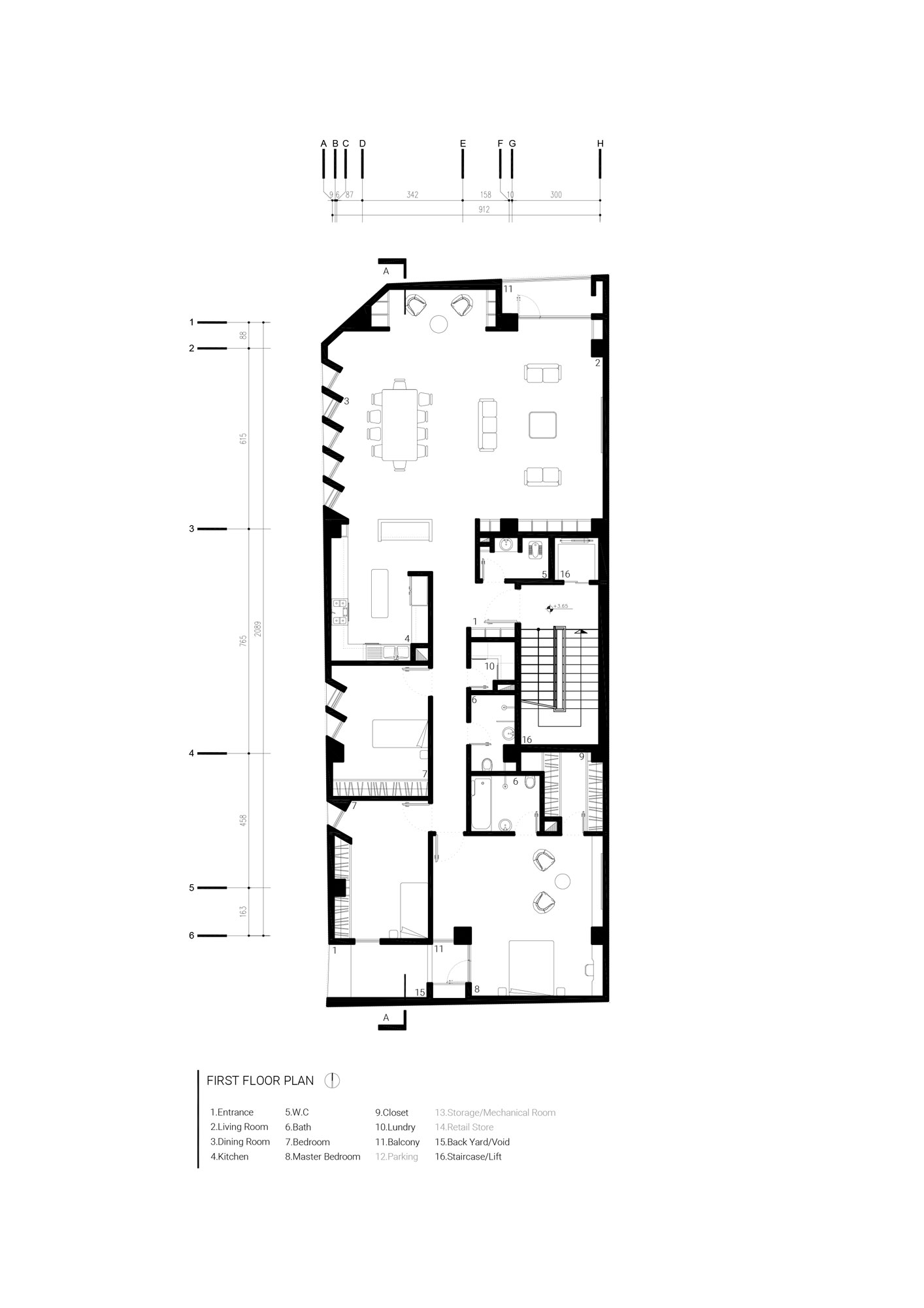
Apartment No. 41 is located in a developing neighborhood of Bushehr at the corner of a dead-end alley. The project is connected to a 12-meter-wide street on the north and a 6-meter-wide street on the west. Since the longer western facade overlooks the narrow western street, the design of the openings to control glare in this facade became the main challenge of the project.
To solve this issue, we deviated from the usual pattern of openings and adopted a strategy of rotating the openings 45 degrees towards the north. This approach not only provided sufficient light and proper exposure but also connected the project to its local context by following the proportions of openings in vernacular architecture of old Bushehr. Thus, the openings were designed to both adhere to the traditional patterns of old Bushehr and address the challenge of western light exposure.
Another challenge of the project was the client’s request for a classical (Roman) facade with extensive ornamentation. The main question for us was how to express ornamentation in this project while, maintaining a dialogue with the local context and satisfying the client’s request.
The neighboring buildings are mostly constructed with classical facades, and we aimed to meet the client’s demands while also establishing an architectural dialogue with the local context.
To achieve this, we repeated the proportions and forms of the openings, and used the unconventional side of the stone to create precise ornamentation in certain parts of the facade. Despite the fact that today, the general public and the housing market in Bushehr favor buildings with classical (Roman) facades, the design of Apartment No. 41 seeks to resist this trend and engage in a dialogue with its local context.












































