
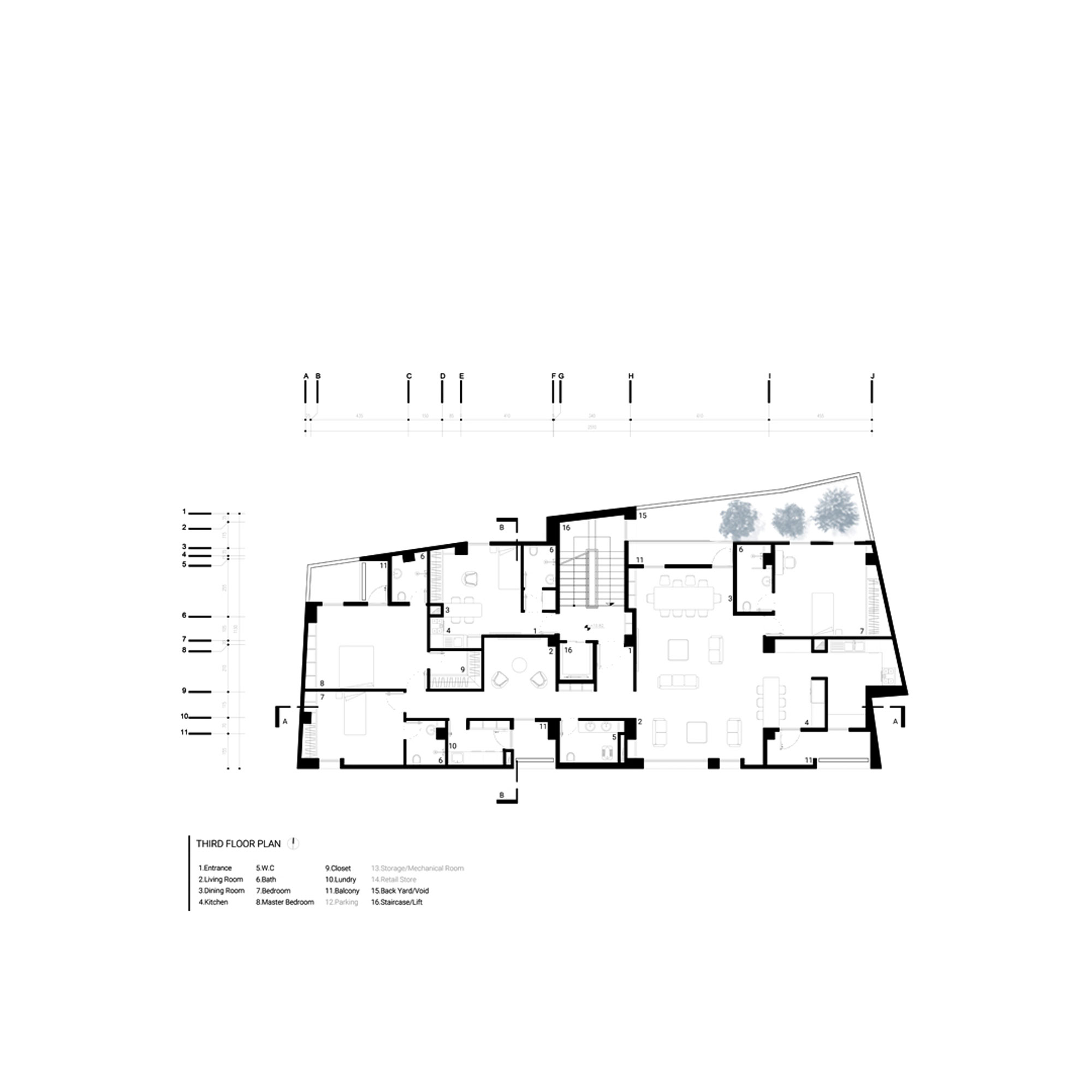
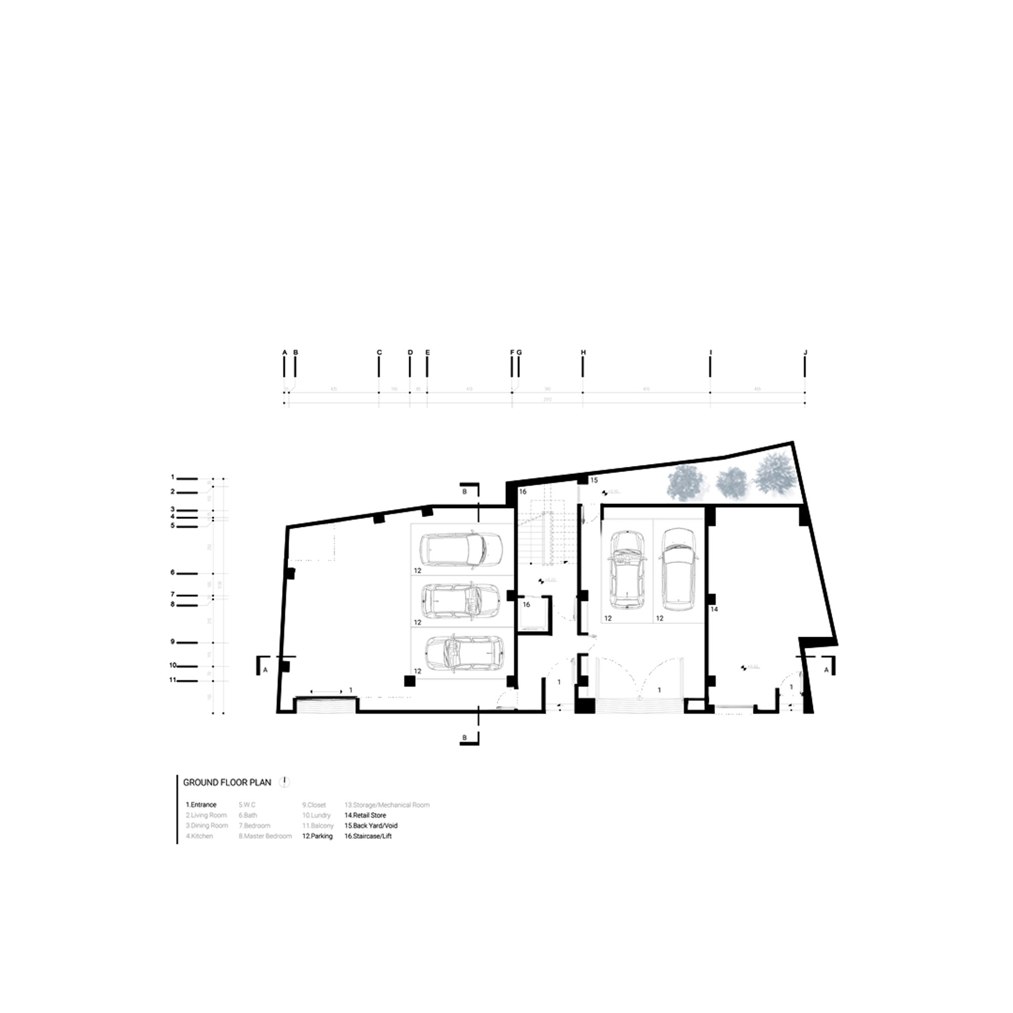
آپارتمان بهارستان ۲۵
- طراح:استودیو معماری دو آن
- معماران:لیلا جمشیدنژاد-علی محقق زاده
- موقعیت:ایران،بوشهر،خیابان عاشوری
- نوع:مسکونی
- سال طراحی:۱۳۹۶
- سال اجرا:۱۳۹۷
- اجرا:بابک بوشهری
- نظارت:استودیو معماری دو آن
- وضعیت:ساخته شده
- مساحت زمین:متر مربع ۲۸۷
- مساحت زیربنا:۱۰۴۰ متر مربع
- متریال:آجر-آجر لعابی
- عکس:آرش اختران
- رندر:احسان داننده
- دیاگرام:احسان داننده
- کارفرما:بابک بوشهری
پروژه بهارستان ۲۵ در محله عاشوری شهر بوشهر است.
محلهای آرام که کمتر اثر معماری قابل توجهی در آن دیده میشود. از این جهت ظاهر یک دست و بیحاشیه این محله .میتواند طالب مقداری جلب توجه باشد
این پروژه مسکونی با استفاده از آجرهای لعابی فیروزهای رنگ در جداره بیرونی نما به این هدف نزدیک شده است بالکنهای آبی فیروزهای رنگ در منظری بیرنگ به نگاه ناظر بیرونی جان میبخشند و تصویری زنده ارائه میکنند؛ در حالی که همزمان برای ساکنین نیز بازتابی از آسمان تازگی و رهایی به همراه میآورد.






















