
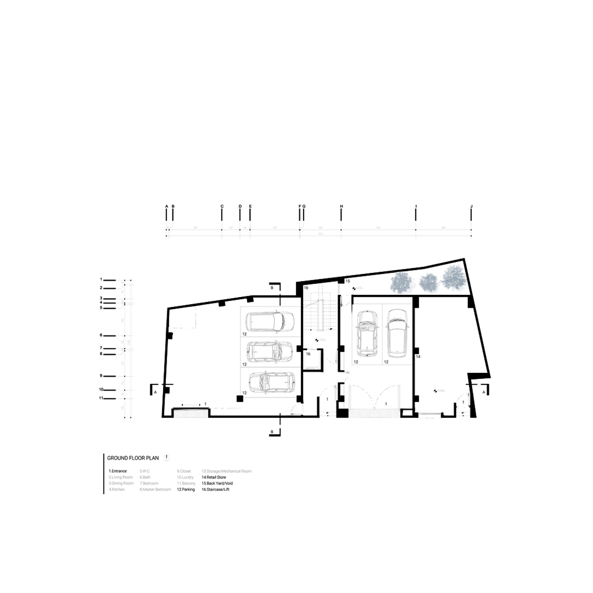
Baharestan No. 25 Apartment
- Architecture Firm:DO/ON Studio
- Lead Architects:Leila Jamshidnejad-Ali Mohagheghzadeh
- Location:Bushehr,Iran
- Type:Residential
- Year:2018
- Construction:Babak Bushehri
- Construction Supervision:DO/ON Studio
- Status:Built
- Site Area:287 m²
- Built Area:1040 m²
- Materials in Use:Brick, Glazed Brick
- Photo:Arash Akhtaran
- Render:Ehsan Danandeh
- Diagram:Ehsan Danandeh
- Client:Babak Bushehri
Baharestan 25 is a project located in the Ashouri district of the city of Bushehr. This is a quiet neighborhood without any significant architecture. Hence, its uniform, bland façade could accommodate a project that attracts some attention.
For this purpose, teal-colored glazed bricks were used in this residential apartment building.
The teal-colored balconies set within the building’s achromatic elevation, present the viewer with a lively view, while at the same time reflecting the sky and bringing a sense of freshness and liberation to the residents.






















