
No. 15 Apartment
- Architecture Firm:DO/ON Studio
- Lead Architects:Leila Jamshidnejad-Ali Mohagheghzadeh
- Location:Bushehr,Iran
- Type:Residential
- Year:2019
- Construction:Mohamad Fatehi
- Construction Supervision:DO/ON Studio
- Status:Built
- Site Area:225 m²
- Built Area:725 m²
- Materials in Use:Brick
- Photo:Arash Akhtaran
- Rendering:Ehsan Danandeh
- Diagram:Ehsan Danandeh
- Client:Mohamad Fatehi
Redesigning a building in order to regain a lost opportunity, or to originate a new opportunity that was previously obscure and unseen.
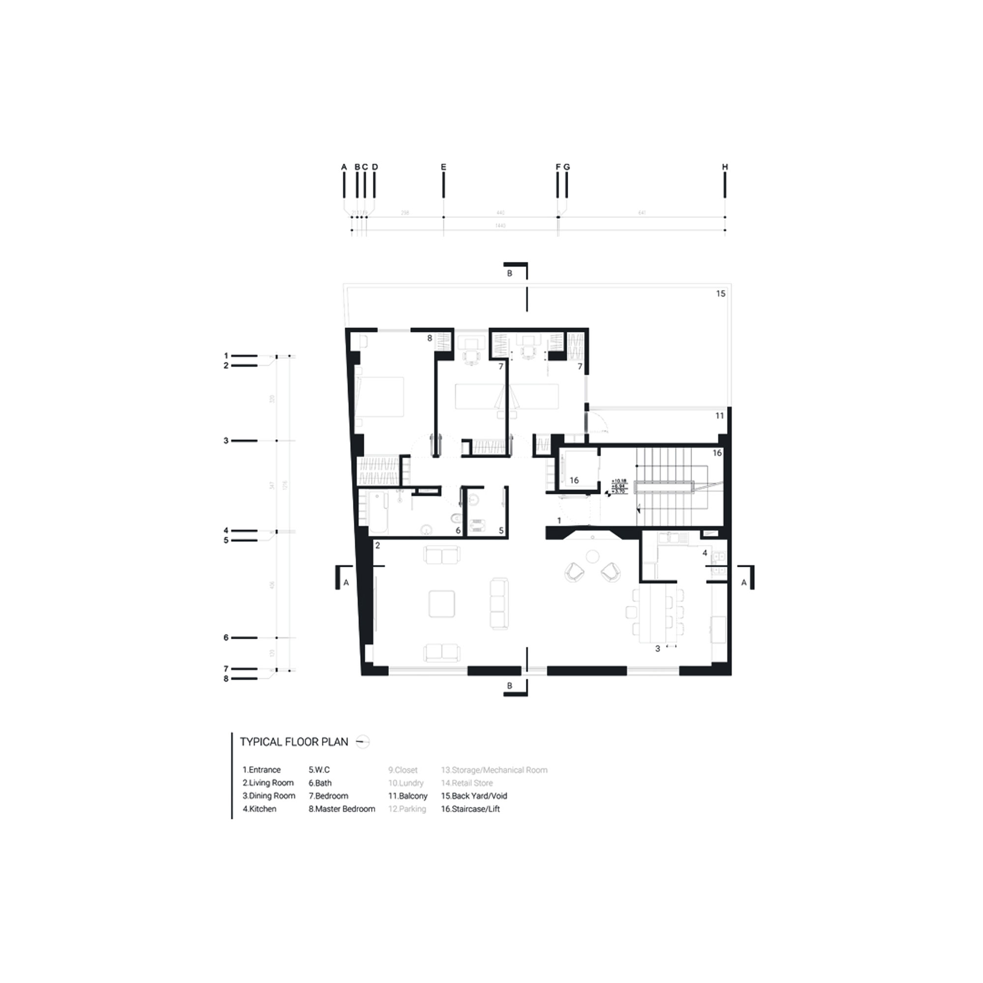
Number 15 is a residential project in the Jofreh district of the city of Busheher, where DO/ON studio was commissioned to redesign one of the floors as well as the building façade.
The walls in this project were redesigned with two goals in mind: to create a sense of belonging to a place, and to provide personalized spaces.
The horizontal extension of the building has been balanced through vertical lines, and vertical modules of dark and white bricks give the façade a sense of dynamism, ultimately making it aesthetically more pleasant.
The western facing windows have been slightly set back to control afternoon light while maintaining a view to the sea.
And the pattern of the black/copper colored bricks not only emphasizes the openings, but also brings color to the façade.




















